1 1 1 1 1 1 1 1 1 1
 
     
 
 
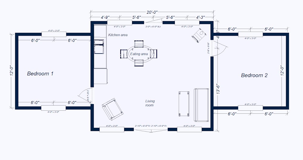
The Ruxton - Ruxton Island, BC, Canada
 
 
 
Ruxton Floor plan sample - can be adjusted to suit your needs